查看和打印计算结果
跳转到导航
跳转到搜索
| 产品 | InstalSystem 5 |
| 文章类型 | 功能和工具 |
| 版本的最新内容 | 版本 REV. 0.0.B37 |
说明
本文以如下表格和图形的形式描述了项目的计算结果:
- 查看和处理诊断消息,
- 查看计算结果提示,
- 查看表中的计算结果,
- 准备要打印表格部分的计算结果,
- 准备要打印图形部分的计算结果。
程序中的位置
查看和处理诊断信息
查看表格中的计算结果
打印项目计算书和图形
应用举例
查看和处理诊断信息
- 信息级别:
- 诊断窗口的标签。
这些信息来自选定的计算范围,所有在计算期间在选定的计算范围内所产生的不同级别的诊断信息都将在这里显示。
4. 诊断窗口标签 - 信息过滤。
可关闭各级别的诊断信息。系统化的处理诊断信息是非常有用的。
- 所选部件的信息组。
此功能可以收集应用于项目中选定部件的所有诊断消息,并可在一次数据编辑操作中立即删除这些信息。
- 选择性的标出某一信息适用的部件。
可通过鼠标左键双击某一信息或从某一组信息适用的部件清单中选择其中之一来标出某一特定部件。
- 标出某一信息适用的所有部件。
可通过鼠标左键双击某一信息或选择菜单中的标出所有发生错误的部件 功能标出多个部件。
- 诊断信息的更多说明。
项目的计算结果带有未完成计算的状态符
查看计算结果提示
- 程序可以提示的形式显示部件的数据和计算结果,以方便用户随时查看,你所要做的就是将鼠标光标放在部件上并稍等片刻。对于某些部件,例如带有内置阀的散热器或带有内置平衡阀或流量计的分集水器,软件将根据光标所在位置的不同而显示不同的内容。当光标位于管道连接点上时,该提示将显示连接点处所使用的目录中的管件和配件的规格型号信息。
查看计算结果表格
- 计算结果表格以树状结构被分为多个部分。每一部分的数量和内容与项目的范围相对应,并在相应的章节中可找到所要的结果。通过多个显示控制功能:查看单个页面、查看多个页面、浏览使用微缩模型,可加速浏览结果。结果表格中还可隐藏标题,材料清单中也可以显示产品的图形和说明等描述性信息。
更多信息,见: 使用项目中的目录和目录数据
准备打印计算结果的表格部分
- 打印方法:
- 在打印输出 窗口中,可按预定义的内容或用户自定义的内容进行打印。
- 也可在结果 窗口中,打印单一表格。
可在结果 窗口中以树状结构的形式分别打印 各个部分。
- 在打印输出 窗口中,可按预定义的内容或用户自定义的内容进行打印。
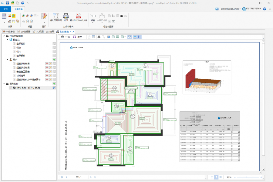
打印计算结果的图形部分
- 插入页面布局.
更多信息,见: 输出 / 打印结果和图纸 - 标签.
- 分集水器设置表.
- 辐射供暖供冷回路.
更多信息,见: 添加辐射系统盘管图 - 盘管辐射构造断面图.
- 图框.
- 标题栏.





