如何删除: "压降太大 - 修改供热/供冷区或供热/供冷面的参数"
跳转到导航
跳转到搜索
| 产品 | InstalSystem 5 |
| 文章类型 | 提示和技巧 |
| 版本的最新内容 | 2022-04-21 |
问题说明
当系统中有压力损失过大的问题时,就会出现如下诊断信息:
- 压力损失太大 - 修改供热/供冷区或供热/供冷面的参数
这一错误信息通常出现在如下情况:
- 用户手动指定的供热/供冷面 的数量阻碍了程序自动分割地面供热/供冷区 的可能性。
- 对于手动分割地面供热/供冷区 的模式,属于该分区的供热/供冷面 的压降超过了允许的值。
解决方法
消除此错误的标准操作:
- 在交互式辐射系统计算 窗口,增加这一回路的温差Δθ供热

1.更改回路的Δθ供热 - 手动分割在自动分割供热/供冷区 过程中引起问题的那个供热/供冷区 (例如,有凹形的隔墙),如有必要,对其进行手动分割成供热/供冷面 的操作。
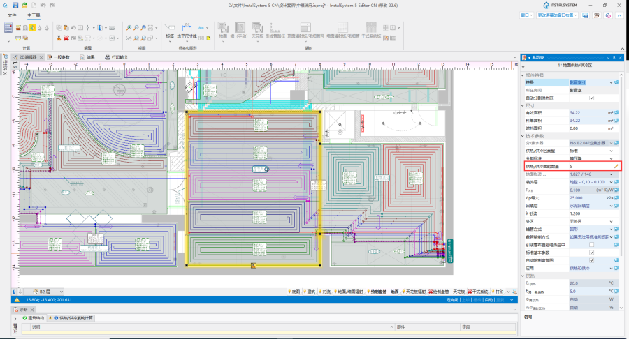
更多信息,见: 供热/供冷区 - 增加供热/供冷面 的数量。这应该在地面供热/供冷区 部件的参数表 窗口中,在供热/供冷面的数量 中通过人为指定来完成。

2. 手动调节地面供热/供冷区 部件中供热/供冷面的数量