一独栋住宅地面和墙面辐射系统的设计

来自HelpSystem
跳到导航 跳到搜索
产品 InstalSystem 5
文章类型 项目案例
版本的最新内容 IS 5.0 Beta 16.1


项目说明

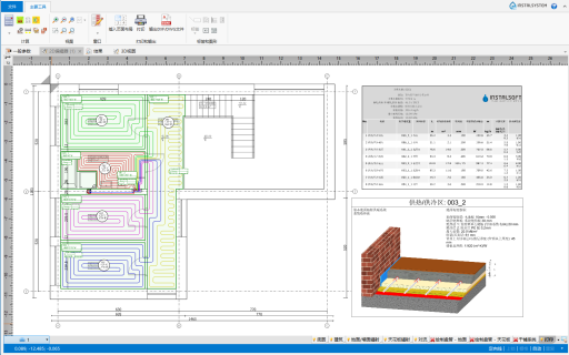
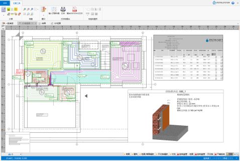
本例说明了某一无地下室的二层建筑采用墙面和地面辐射供暖系统的设计方法


要下载的文件和项目信息

项目文件

如何计算所下载的文件?

某独栋住宅地面和墙面辐射供热系统的设计, isproj
设计采用 InstalSystem 5
Rev. GOLD 23.2
所需模块 基本模块
盘管辐射系统
供热系统
项目范围 辐射供热系统计算
所使用的目录

基本辐射系统
铜管及钢管接头和管件
铜管和管件 EN 1057
无品牌配件
标准绝热材料目录
通用阀门目录 - 典型构造

建筑类型 独栋住宅
无地下室
2-层
建筑结构 首层底图, dwg
二层底图, dwg
图纸范围 平面图
设计人 Logo-instalsoft-new.png

www.instalsoft.com
法律声明 允许复制项目的整个或部分文件
计算结果 全部结果打印输出, xls
全部结果打印输出, pdf
一般供热结果, pdf
材料清单, pdf
安装参数, pdf
出图 首层, dwg
二层, dwg
首层, pdf
二层, pdf