供热/供冷区的构造编辑器
跳转到导航
跳转到搜索
| 产品 | InstalSystem 5 |
| 文章类型 | 功能和工具 |
| 版本的最新内容 | Version GOLD Rev. 16.0 |
说明
本文描述了基于供热/供冷区的位置对其结构、传热和运行数据编辑的可能性。
在程序中的位置
供热/供冷区的构造编辑器位于:点击供热/供冷区 ,查看其参数表 ,在地面供暖/供冷构造 \ 墙面供热/供冷构造 \ 天花板供热/供冷构造 的下拉菜单中。

应用举例
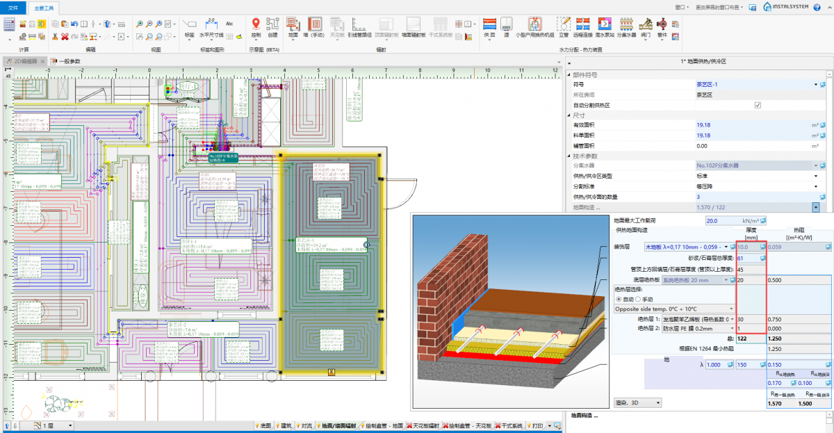
在供热/供冷区构造编辑器中参数的展示
- 地面供暖/供冷构造 \ 墙面供热/供冷构造 \ 天花板供热/供冷构造 中显示供热/供冷区的总厚度以及总热阻
- 打开编辑器后,用户可以访问特定数据,并根据这些数据计算总值:
在编辑器窗口中修改参数后,需要重新计算项目以更新所有数值。
供热/供冷区构造的编辑
表面装饰层

砂浆/石膏层总厚度

如果设置成自动 , 则砂浆/石膏层总厚度 也许会根据地面最大工作载荷 () 值,在生产商允许的限制范围内进行相应调整。 用户可以在考虑所有其它系统参数的同时,在系统生产者允许的范围内改变厚度。
管顶上方回填层/石膏层厚度 (管顶以上厚度 )总是由程序计算确定的,不能手动修改。
系统构造板

- 如何有下面的情况,用户也可修改绝热板:
- 对于特定的管材固定方法,有多种绝热板供选择

11.在一般参数 中选择系统构造板 - 在供热/供冷区 的参数表 中, 只有关闭了标准基本参数 后,用户才可进行编辑,当这个区域处于自动 状态时,用户是无法进行编辑的

12.在参数表 中选择系统构造板
绝热层选择

- 自动
对于给定的绝热板和基于另一侧的温度 值,程序根据 EN 1264: 1:2011 2:2013 3,4:2009 5:2008 标准,进行带有最小热阻的绝热层选择
14. 绝热层选择 - 自动 - 手动
用户也可从目录中进行绝热层选择 或通过选择特定的绝热层(最多可达5层)进行自定义
15. 绝热层选择 - 手动
盘管辐射构造断面图
用户可以改变断面构造图的显示方式。

结构和供热隔断的参数编辑






